MLS ID: 418648 - Introducing Aqua Bay, the newest Seven Mile Beach real estate opportunity from Butler Group, Grand Cayman’s premier builder of luxury resort condominiums. Designed to enhance your Caribbean experience, Aqua Bay, with its view of the entire Seven Mile Beach crescent with a westerly facing beach outlook, is a place for you to share with your friends and family while maintaining an outstanding investment for your future.
The design of each Aqua Bay villa has been thoughtfully considered to maximize your views and provide exceptional living and amenity spaces. The interior design has been developed by Butler Group’s award-winning partner company, Design Studio Interiors. The villas will feature 10 ft. high ceilings, expansive floor to ceiling windows, superior tile and finish options, top quality plumbing and appliance selections as well as bespoke millwork design for the kitchen, bathrooms, and amenity areas. The exterior of the building reflects a contemporary, Caribbean profile with every opportunity taken to enhance the views, accentuate the landscape, and add interest and beauty to the structure.
Following Butler Group’s forty-four-year reputation for building excellence, Aqua Bay will be engineered and constructed to the highest standards. Elevated over 25 ft. above sea level for privacy and storm protection, this structure will utilize the latest specifications for the building’s essential services, including solar tinted, hurricane rated glazing systems. Amenities will include boutique hotel style reception, 90 ft. wide beachfront, waterfall edge pool, extensive pool deck and private beach, two beachfront BBQ areas for al fresco dining, oceanfront fitness centre, oceanfront owners lounge and games room, on site manager’s office, undercover parking for each villa, day room facilities for late checkout options and lush tropical landscape design.
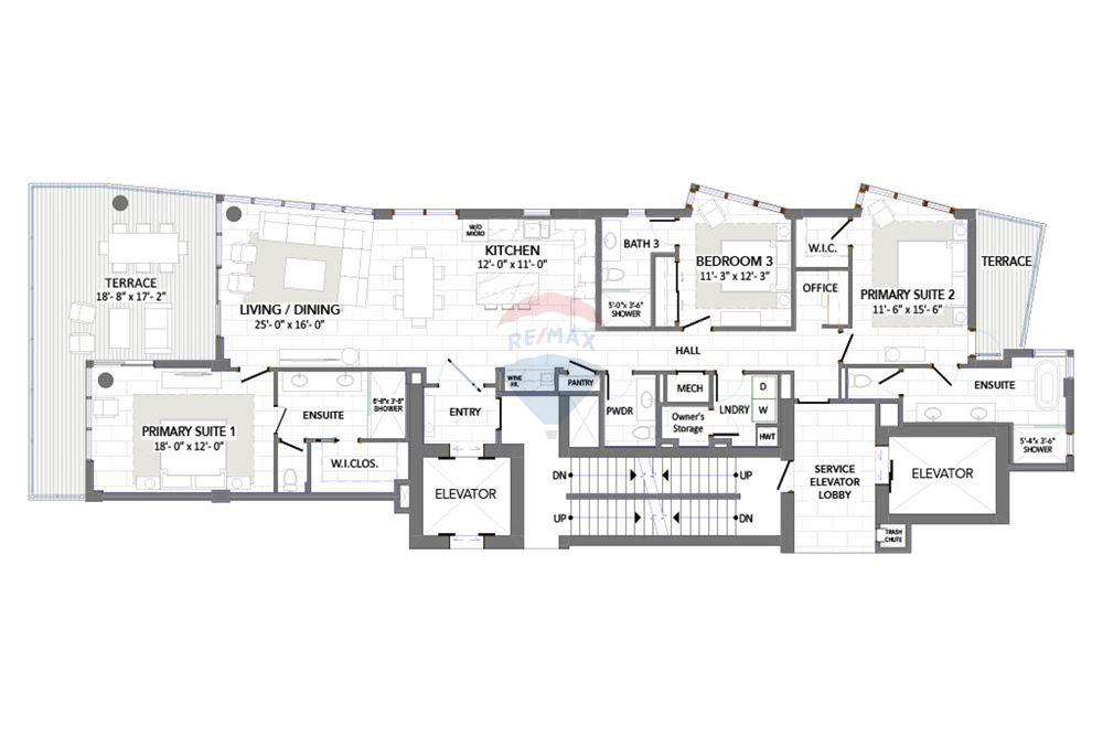
Aqua Bay will offer a daily rental program which owners can utilize while not in residence, making this building the newest and most luxurious daily rental destination in Grand Cayman. With over 2568 sq. ft. and featuring 3 bedrooms and 3.5 bathrooms, this corner villa features an open concept living/dining area and kitchen with wet bar, 2 Primary Bedrooms Suites each with luxurious spa bathrooms - one with access to a large terrace with stunning views of Seven Mile Beach and the other facing North Sound with a terrace to enjoy incredible sunrises and views to Rum Point and Cayman Kai, a powder room, a home office and laundry room. Additionally, by virtue of the central core design, you will enjoy a private elevator entryway to your villa.
Sales price does not include any artwork, ornaments or personal effects.